

| 截止閥為什么要低進高出? 發布時間:18-03-08 | ||||||||||||||||||||||||||||||||||||||||||||||||||||||||||||||||||||||||||||||||||||||||||||||||||||||||||||||||||||||||||||||||||||||||||||||||||||||||||||||||||||||||||||||||||||||||||||||||||||||||||||||||||||||||||||||||||||||||||||||||||||||||||||||||||||||||||||||||||||||||||||||||||||||||||||||||||||||||||||||||||||||||||||||||||||||||||||||||||||||||||||||||||||||||||||||||||||||||||||||||||||||||||
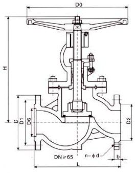
![]() 一般中低壓的截止閥是低進高出,截斷的時候填料不受力,減少泄漏的幾率,可以延長使用壽命. 一般>DNA100的截止閥可以采用高進 低出; 大口徑和高壓狀態下采用低進高出的話關閉閥門比較困難,二是因為如果再高壓大口徑狀態下采用低進高出,閥桿長期受到水壓力容易變形彎曲,影響閥門的安全性和密封性;三是選用高進低處的話對閥桿直徑就可以小點,對于廠家和使用者來說也會節約點成本。 ![]() 截止閥外形及結構尺寸 1.6MPa
截止閥外形及結構尺寸 2.5MPa
截止閥外形及結構尺寸 4.0MPa
|
|
||
|
||
|
||
|
||
|
||
|
||
|
||
|
||
|
||
|
||
|
||
|
||
|
||
|
||
|
||