閘閥概述閘閥的啟閉件是閘板,閘板的運動方向與流體方向相垂直,閘閥只能作全開和全關,不適合作調節和節流。閘板有兩個密封面,最常用的楔式閘板閥的兩個密封面形成楔形,楔形角隨閥門參數而異,通常為5o。楔式閘閥的閘板可以做成一個整體,叫做剛性閘板;也可以做成能產生微量變形的閘板,以改善其工藝性,彌補密封面角度在加工過程中產生的偏差,這種閘板叫做彈性閘板。閘閥關閉時,密封面可以只依靠介質壓力來密封,即依靠介質壓力將閘板的密封面壓向另一側的閥座來保證密封面的密封,這就是自密封。大部分閘閥是采用強制密封的,即閥門關閉時,要依靠外力強行將閘板壓向閥座,以保證密封面的密封性。閘閥的閘板隨閥桿一起作直線運動的,叫升降桿閘閥(亦叫明桿閘閥)。通常在升降桿上有梯形螺紋,通過閥門頂端的螺母以及閥體上的導槽,將旋轉運動變為直線運動,也就是將操作轉矩變為操作推力。有的閥門,閥桿螺母設在閘板上,手輪轉動帶動閥桿轉動,而使閘板提升,這種閥門叫做旋轉桿閘閥或叫暗桿閘閥。
1.流體阻力小,密封面受介質的沖刷和侵蝕小。
2.開閉較省力。
3.介質流向不受限制,不擾流、不降低壓力。
4.形體簡單,結構長度短,制造工藝性好,適用范圍廣。閘閥的種類:按密封面配置可分為楔式閘板式閘閥和平行閘板式閘閥,楔式閘板式閘閥又可分為:單閘板式、雙閘板式和彈性閘板式;平行閘板式閘閥可分為單閘板式和雙閘板式。按閥桿的螺紋位置劃分,可分為明桿閘閥和暗桿閘閥兩種。
本公司閘閥產品有:楔式閘閥、刀型閘閥、彈性座封閘閥、JIS日標、ANSI美標閘閥、夾套保溫閘閥、漿液閥、鍛鋼閘閥、平板閘閥、暗桿閘閥、真空閘閥等系列產品。公稱壓力或壓力級:PN1.0-16.0MPa、ANSI CLASS 150-300LB、JIS10-20K公稱通徑或口徑:DN10~1000、NPS 1/2 ~36"連接方式:法蘭、對焊、螺紋等適用溫度:-196℃~700℃驅動方式:手動、傘齒輪傳動、氣動、電動、液動、氣液聯動、電液聯動閥體材料:WCB、ZG1Cr18Ni9Ti、ZG1Cr18Ni12Mo2Ti、CF8(304)、CF3(304L)、CF8M(316)、 CF3M(316L)、Ti。選用不同的材質,可分別適用于水、蒸汽、油品、硝酸、醋酸、氧化性介質、尿素等多種介質。
以上是Z41H 鑄鋼法蘭閘閥的詳細信息,如果您對Z41鑄鋼法蘭閘閥的價格、廠家、型號、圖片有什么疑問,請聯系我們獲取Z41鑄鋼法蘭閘閥的最新信息。
三、Z41H鑄鋼法蘭閘閥--執行標準 Administer Standard
設計與制造 Design and Manufacture | 結構長度 Face To Face | 法蘭尺寸 Flange Dimension | 壓力-溫度 Pressure Temperature Lating | 試驗-檢驗 spection And Test |
GB122234 | GB12221 | GB9113 JB79 | GB9131 | GB/T13927 JB/T9092 |
四、Z41H 鑄鋼法蘭閘閥--壓力試驗 Pressure Test
公稱壓力 NominalPressure | 1.6 | 2.5 | 4.0 | 6.4 | 10.0 | 16.0 |
強度試驗 Shell Test | 2.4 | 3.8 | 6.0 | 9.6 | 15.0 | 24.0 |
水密封試驗 Water Seal Test | 1.8 | 2.8 | 4.4 | 7.0 | 11.0 | 18.0 |
上密封試驗 Backseat Test | 1.8 | 2.8 | 4.4 | 7.0 | 11.0 | 18.0 |
氣密封試驗 Air Seal Test | 0.4-0.7 |
五、Z41H 鑄鋼法蘭閘閥--主要零件材料及性能 Main Part Materials and Property
體、蓋、板 Body Cover Disc | 閥桿 Stem | 密封面 Sealing Face | 墊片 Sealing Shim | 填料 Packing | 工作溫度 Working Temperature | 適用介質 Suitable Medium | |
WCB | 2Cr13 | 13Cr STL 木體材料 With Body Material 尼龍 Nylon | 增強柔性石墨 13Cr/柔性石墨 Enhanced Flexible Graphite 1Cr13/Flexible Graphite 08軟鋼 08 Soft Steal 0Cr18Ni9Ti 0Cr17Ni12Mo2Ti XD550F(T) PTFE | 柔性石墨 增強柔性石墨 Flexible Graphite Enhanced Flexible Graphite SFB/260 SFP/260 PTFE | ≤425 | 水 蒸汽 油品 Water Steam Oil Goods | |
WC1 | 38CrMoAl 25Cr2MoV | ≤450 | |
WC6 | ≤540 | |
WC9 | ≤570 | |
C5 C12 | ≤540 | |
ZGCr5Mo | ≤200 | 硝酸類 Nitric acid | |
ZG1Cr18Ni9Ti | 1Cr18Ni9Ti | |
≤200 | 醋酸類 Acetic acid | |
ZG1Cr18Ni12Mo2Ti | 1Cr18Ni12Mo2Ti | |
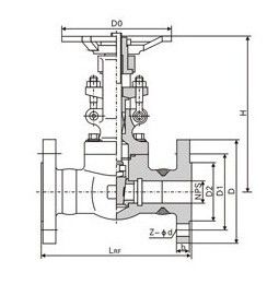
六、Z41H鑄鋼法蘭閘閥--主要尺寸和重量 Size Main Dimensions and Weight
1.6MPa | DN | L | D | D1 | D2 | b | n-φd | H | D0 | 重量Weight |
凸面法蘭 RF
Z40H Z40Y Z40W Z40F Z40N
Z41H Z41Y Z41W Z41F Z41N
16C 16P 16R 16I | 15 | 130 | 95 | 65 | 45 | 14 | 4-14 | 170 | 120 | 5 |
20 | 150 | 105 | 75 | 55 | 14 | 4-14 | 190 | 140 | 6.5 |
25 | 160 | 115 | 85 | 65 | 14 | 4-14 | 205 | 160 | 9 |
32 | 180 | 135 | 100 | 78 | 16 | 4-18 | 270 | 180 | 12 |
40 | 200 | 145 | 110 | 85 | 16 | 4-18 | 310 | 200 | 36.5 |
50 | 250 | 160 | 125 | 100 | 16 | 4-18 | 358 | 240 | 29 |
65 | 260 | 180 | 145 | 120 | 18 | 4-18 | 373 | 240 | 33 |
80 | 280 | 195 | 160 | 135 | 20 | 8-18 | 435 | 280 | 45 |
100 | 300 | 215 | 180 | 155 | 20 | 8-18 | 500 | 300 | 63 |
125 | 325 | 245 | 210 | 185 | 22 | 8-18 | 614 | 320 | 108 |
150 | 350 | 280 | 240 | 210 | 24 | 8-23 | 674 | 360 | 134 |
200 | 400 | 335 | 295 | 265 | 26 | 12-23 | 818 | 400 | 192 |
250 | 450 | 405 | 355 | 320 | 30 | 12-25 | 969 | 450 | 273 |
300 | 500 | 460 | 410 | 375 | 30 | 12-25 | 1145 | 560 | 379 |
350 | 550 | 520 | 470 | 435 | 34 | 16-25 | 1280 | 640 | 590 |
400 | 600 | 580 | 525 | 485 | 36 | 16-30 | 1452 | 640 | 850 |
450 | 650 | 640 | 585 | 545 | 40 | 20-30 | 1541 | 720 | 907 |
500 | 700 | 705 | 650 | 608 | 44 | 20-34 | 1676 | 720 | 985 |
600 | 800 | 840 | 770 | 718 | 48 | 20-41 | 1874 | 800 | 1112 |
700 | 900 | 910 | 840 | 788 | 50 | 24-41 | 2083 | 800 | - |
800 | 1000 | 1020 | 950 | 898 | 52 | 24-41 | 2400 | 950 | - |
900 | 1100 | 1120 | 1050 | 998 | 54 | 28-41 | 2950 | 1000 | - |
1000 | 1200 | 1255 | 1170 | 1110 | 56 | 28-48 | 3245 | 1000 | - |

七、Z41H鑄鋼法蘭閘閥--安裝與維護
1、 安裝:
(1) 安裝前須檢查產品型號、位號及規格是否吻合,檢查整機零件是否缺損與松動。
(2) 在安裝前,對管道應進行清洗,閥門入口處要有足夠的直管段,并配有過濾器。閥體與管道的法蘭連接,要注意同軸度。
(3) 切斷閥安裝前,應先徹底清洗管道。
(4) 安裝場地應考慮到人員設備的安全,既便于操作,又有利于拆裝與維護。
(5) 閥門應正立垂直安裝在水平管道上,不得已時可傾斜安裝,盡量避免水平安裝,閥自重量較大或有振動的場合,要用支撐架。
(6) 介質流動方向應與閥體上的箭頭指向一致。氣源應干燥、無油。閥門應在環境溫度-20~55℃場所使用。
2、 維護:
(1) 清洗閥門:對清洗一般介質,只要用水洗凈就可以。但對清洗有害健康的介質,首先要了解其性質,再選用相應的清洗辦法。
(2) 閥門的拆卸:將外露表面生銹的零件先除銹,但在除銹前,要保護好閥座、閥芯、閥桿與推桿等精密零件的加工表面。拆裝閥座時應使用專用工具。
(3) 閥座:密封面有較小的銹斑與磨損,可用機械加工的方法進行,如損壞嚴重必須換新。但不管修理或更換后的硬密封面,都必須進行研磨。
(4) 閥桿:表面損壞,只能換新。
(5) 推桿、導向與密封表面的損壞:對反作用執行機構必須換新,而對正作用執行機構,可用適當的修理后使用。
(6) 壓縮彈簧:如有裂紋等影響強度的缺陷,必須換新。
(7) 易損零件:填料、密封墊片與O型圈,每次檢修時,全部換新。閥芯、膜片必須檢查是否有預示將來可能發生的裂紋、老化與腐蝕痕跡,根據檢查結果,決定是否更換,但膜片使用期一般最多2-3年。
(8) 閥門組裝要注意對中,螺栓要在對角線上擰緊,滑動部分要加潤滑油。組裝后應按產品出廠測試項目與方法調試,并在這期間,可準確地調整填料壓緊力、閥芯關閉位置。
上兆閥門其他產品:
閘 閥 截止閥 球 閥 蝶 閥 緊急切斷閥 電磁閥 水力控制閥 止回閥 刀型閘閥 旋塞閥 過濾器 減壓閥 疏水閥 隔膜閥 調節閥 阻火器 呼吸閥 燃氣閥門 冶金閥門