F9T43X電動推桿扇形盲板閥詳細資料:
一、電動推桿盲板閥產品特點:
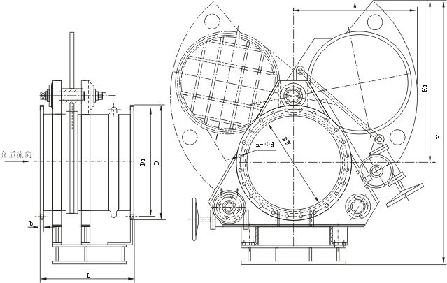
電動推桿扇形盲板閥又名電動推桿扇形眼鏡閥,電動推桿扇形翻板,主要由左閥體、右閥體、閥桿、閘板、密封圈、電動推桿等零件組成,并由底座、支撐柱構成一個剛性結構體。密封部位采用不銹鋼與橡膠密封圈,密封性能好,使用壽命長,密封圈設置閘板上,易于維護時更換密封圈,橡膠密封圈鑲鉗在閘板上。電動推桿盲板閥可以單臺遠距離控制,亦可多臺聯網遠距離控制,非正常情況下還可以利用閥門本身裝置手動操作。
二、電動推桿盲板閥主要性能參數:
公稱壓力MPa | 0.25 | 0.15 | 0.10 | 0.05 |
密封試驗壓力MPa | 0.275 | 0.165 | 0.11 | 0.055 |
強度試驗壓力MPa | 0.375 | 0.225 | 0.15 | 0.075 |
驅動源 | 電動裝置 |
適用溫度℃ | 丁腈橡膠 | 硅橡膠 | 氟橡膠 |
| | |
適用介質 | 煤氣等有毒、有害、易燃氣體 |
| |
主要零部件材料 | 閥體、閘板為碳鋼;絲桿為合金鋼;螺母為錳銅合金、球墨鑄鐵;伸縮器為不銹鋼 |
三、電動推桿盲板閥主要外形尺寸: 單位:mm
DN | D | D1 | b | n-φd | L |
300 | 440 | 395 | 18 | 12-φ22 | 500 |
350 | 490 | 445 | 18 | 12-φ22 | 600 |
400 | 540 | 495 | 24 | 16-φ22 | 600 |
450 | 595 | 550 | 24 | 16-φ22 | 600 |
500 | 645 | 600 | 26 | 20-φ22 | 600 |
600 | 755 | 705 | 26 | 20-φ26 | 600 |
700 | 860 | 810 | 26 | 24-φ26 | 600 |
800 | 975 | 920 | 35 | 24-φ30 | 800 |
900 | 1075 | 1020 | 35 | 24-φ30 | 800 |
1000 | 1175 | 1120 | 35 | 28-φ30 | 800 |
1100 | 1275 | 1220 | 35 | 36-φ30 | 800 |
1200 | 1375 | 1320 | 35 | 32-φ30 | 800 |
1300 | 1475 | 1420 | 35 | 36-φ30 | 800 |
1400 | 1575 | 1520 | 35 | 36-φ30 | 800 |
1500 | 1675 | 1620 | 35 | 36-φ30 | 850 |
1600 | 1790 | 1730 | 35 | 40-φ30 | 850 |
1800 | 1990 | 1930 | 35 | 44-φ30 | 1100 |
2000 | 2190 | 2130 | 35 | 46-φ30 | 1100 |

四、電動推桿盲板閥訂貨須知:
1、①產品名稱與型號②電動推桿盲板閥口徑③是否帶附件以便我們的為您正確選型。
2、若已經由設計單位選定的電動推桿盲板閥型號,請按電動扇形盲板閥型號直接向我司銷售部訂購。
3、當使用的場合非常重要或環境比較復雜時,請您盡量提供設計圖紙和詳細參數。
上兆閥門其他產品:
閘 閥 截止閥 球 閥 蝶 閥 緊急切斷閥 電磁閥 水力控制閥 止回閥 刀型閘閥 旋塞閥 過濾器 減壓閥 疏水閥 隔膜閥 調節閥 阻火器 呼吸閥 燃氣閥門 冶金閥門