LMS雙向螺旋閘門詳細資料: 一、產品用途:
螺旋閘門是一種粉料、晶粒料、顆粒料及小塊物料的流量或輸送量的主要控制設備,廣泛使用在冶金、礦山、建材、糧食、化工等行業控制流量變化或迅速切斷。
二、 產品特點:
LMS雙向螺旋閘門具有結構簡單、操縱靈活、重量輕、無卡阻、特別適用于各類固體物料和50mm左右塊狀、團狀物料的輸送及流量調節,安裝不受角度限制,操作方便,能隨時調整尺度,可雙向操作,簡單靈活。材質有碳鋼、不銹鋼,并可按客戶需求定做各種非標螺旋閘門。
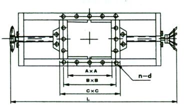
三、產品外形連接尺寸:


| 類別 | A×A1 | B×B1 | C×C1 | L | H | N-d | 重量(kg) |
| 單向 | 200×200 | 256×256 | 296×296 | 820 | 100 | 8-Φ12 | 62 |
| 245×245 | 305×715 | 341×751 | 1620 | 100 | 8-Φ14 | 68 |
| 250×250 | 306×306 | 346×346 | 930 | 100 | 8-Φ14 | 70.5 |
| 300×300 | 356×356 | 396×396 | 1050 | 100 | 8-Φ14 | 81 |
| 400×400 | 456×456 | 496×496 | 1250 | 100 | 12-Φ14 | 114 |
| 450×450 | 510×510 | 556×556 | 1350 | 120 | 12-Φ18 | 130 |
| 490×490 | 550×550 | 596×596 | 1440 | 120 | 16-Φ18 | 147 |
| 500×500 | 560×560 | 606×606 | 1500 | 120 | 16-Φ18 | 153 |
| 600×600 | 660×660 | 706×706 | 1710 | 120 | 16-Φ18 | 178 |
| 700×700 | 770×770 | 820×820 | 1940 | 140 | 20-Φ18 | 213 |
| 800×800 | 870×870 | 920×920 | 2140 | 140 | 20-Φ18 | 257 |
| 900×900 | 974×974 | 1030×1030 | 2410 | 160 | 24-Φ18 | 325 |
| 980×980 | 1054×1054 | 1110×1110 | 2570 | 160 | 24-Φ23 | 392 |
| 1000×1000 | 1074×1074 | 1130×1130 | 2610 | 160 | 24-Φ23 | 428 |
| 雙向 | 600×600 | 660×660 | 706×706 | 2010 | 120 | 16-Φ18 | 200 |
| 600×1000 | 660×1074 | 706×1130 | 2870 | 120 | 20-Φ23 | 290 |
| 700×700 | 770×770 | 820×820 | 2130 | 140 | 20-Φ18 | 290 |
| 800×800 | 870×870 | 920×920 | 2240 | 140 | 20-Φ18 | 310 |
| 900×900 | 974×974 | 1030×1030 | 2660 | 160 | 20-Φ23 | 380 |
| 1000×1000 | 1074×1074 | 1130×1130 | 2870 | 160 | 24-Φ23 | 460 |
| 1100×1100 | 1180×1180 | 1240×1240 | 3120 | 180 | 28-Φ23 | 500 |
| 1200×1200 | 1280×1280 | 1340×1340 | 3310 | 180 | 32-Φ23 | 540 |
注
: LMD-單向 I-手輪 Ⅱ-鏈輪,距地面小于1.7米用手輪,大于1.7米用鏈輪
鏈條節數M=0.105X-113(X是絲桿中心離地面度度)