

| 固定球閥使用說明 發布時間:20-06-02 | |||||||||||||||||||||||||||||||||||||||||||||||||||||||||||||||||||||||||||||||||||||||||||||||||||||||||||||||||||||||||||||||||||||||||||||||||||||||||||||||||||||||||||||||||||||||||||||||||
一、固定球閥--用途和結構特點 Q47型固定球閥是新一代高性能球閥,適用于長輸管線和一般工業管線,其安全,耐惡劣環境性等在設計時均已進行了特殊考慮,適用于各種腐蝕性和非腐蝕性介質。它與浮動式球閥相比,工作時管道中閥前流體壓力在球體上產生的作用力全部傳遞給上下軸承,球體不會移動,閥門密封靠彈簧和介質壓力推動閥座實現,因而閥座不會承受過大壓力,所以Q47型固定式球閥閥座變形小,操作力矩輕,密封性能可靠,使用壽命長。特別適用于高壓,大口徑的場合。 2、閥門結構圖: ![]() 二、固定球閥--基本設計 閥門設計:GB/T 12237 API 6D 形 式:直通對開式閥體 直通三片式閥體 結構長度:GB/T 12221 ANSI B16.10 公稱壓力:PN0.6~10.0Mpa CLASS150~600Lb 連接形式:JB/T79.1~JB/T79.4 GB/T9113.1 ANSI B16.5 使用溫度:-29~425℃ 適用介質:水、氣、油品等 ![]() 三、固定球閥--工作原理和結構說明 本產品為法蘭式固定球結構。它的啟閉件為一個球體,利用球體繞閥桿旋轉 90°實現的開啟和關閉的目的。每臺閥有兩個閥座密封圈,每個方向都能密封,因而沒有流向限制,是雙向閥。中法蘭用螺柱連接,上下閥桿均設有滑動軸承,減少摩擦,使操作省力、平穩。下閥桿底部設有調整墊片,保證球體與密封圈的接觸位置。密封圈采用聚四氟乙烯鑲嵌入閥座支撐圈內,閥座后部設有彈簧保證低壓時閥座預緊力,保證密封。閥座預緊組件具有自緊特性,實現上游密封。 閥座密封圈的材料為RPTFE(增強聚四氟乙烯),具有摩擦系數小,性能穩定,不易老化等優點。 本批閥門具有安全防火功能,非金屬四氟乙烯鑲在閥座上面,低壓時靠裝配調整兩閥座密封圈,使之貼近球體,靠四氟乙烯圈密封;高壓時,由介質推動閥座,四氟圈和金屬閥座同時密封。當事故起火時,四氟密封圈遇高溫升華,失去密封作用,這時金屬的閥座密封圈就可以暫時密封。 防靜電結構:在閥桿與球體的接觸部位,設有彈簧頂著一個鋼珠,保持閥桿與球體始終接觸,從而使球體防靜電。 防閥桿飛出機構:閥桿是采用下壓式結構,在壓蓋和填料完全松動的情況下,閥桿也不可能飛出。 泄壓裝置:當閥門中腔壓力升高到大于管道壓力時,中腔壓力會自動推開閥座,使之脫離球體,把中腔的高壓泄到管道中去,從而保證了安全。 閥門流量孔與管線內徑一致,以便管線清掃。閥腔底部設有排污閥,清洗管道時作排污用。 蝸輪手動,蝸輪軸蓋上帶有方向指示盤,手輪順時針方向旋轉,關閉;手輪逆時針方向旋轉,開啟。(箭頭指向通道兩邊為閥門開啟) 四、主要外形尺寸及主要零件材料: 1、主要零部件材料表:
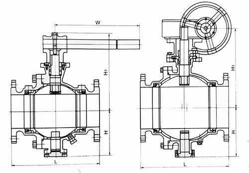
Q347F蝸輪固定式法蘭球閥--外形尺寸: PN1.6MPa下的硬密封固定球閥外形尺寸
PN2.5MPa下的硬密封固定球閥外形尺寸
五、固定球閥--安裝與維護 1、安裝 1.1安裝前應仔細核對閥門銘牌內容,保證閥門類型、尺寸、閥座材料、使用溫度等額定值符合管道的使用情況; 1.2安裝前最好能對閥門所有連接處的螺栓進行檢查,保證其已均勻擰緊。并檢查填料是否壓緊而密封; 1.3安裝前應對管線進行清掃,去除管線中的油污、焊渣等雜質; 1.4閥門在搬運中應輕取輕放,禁止拋扔或跌落; 1.5大型閥門應安裝固定支架,保證閥門安裝后整條管線的穩定性和安全性; 1.6閥門安裝時應取下閥門兩端的防塵蓋; 1.7閥門往管線上安裝時,在法蘭間應墊合適的密封墊片,取相應規格的螺栓把法蘭對角均勻擰緊; 1.8如閥門安裝后發現閥桿密封滲漏,可能是在運輸中震動和溫度變化引起填料松馳,擰緊填料壓蓋螺母即可。并注意給填料加些潤滑油,可減輕操作力矩; 1.9安裝完后應對閥門驅動裝置進行檢查和測試。 2、儲存與維護 2.1在干燥通風的室內,兩端應蓋上防塵蓋,以保證閥門的內腔清潔; 2.2長期存放的閥門密封面應涂防銹油,并定期檢查。 2.3大型閥門存放在室外保管時,應支撐起來,不要與地面接觸,并用塑料薄膜覆蓋保護; 2.4長期存放閥門在重新使用時,應檢查填料是否失效,并對各傳動部位加注潤滑油; 2.5閥門在使用中應定期檢查以保持閥門的使用性能,包括定期擰緊閥門填料壓蓋螺母,以補償閥桿磨損。 2.6保持閥門的工作環境清潔,能延長閥門的使用壽命。 |
|
||
|
||
|
||
|
||
|
||
|
||
|
||
|
||
|
||
|
||
|
||
|
||
|
||
|
||
|
||